
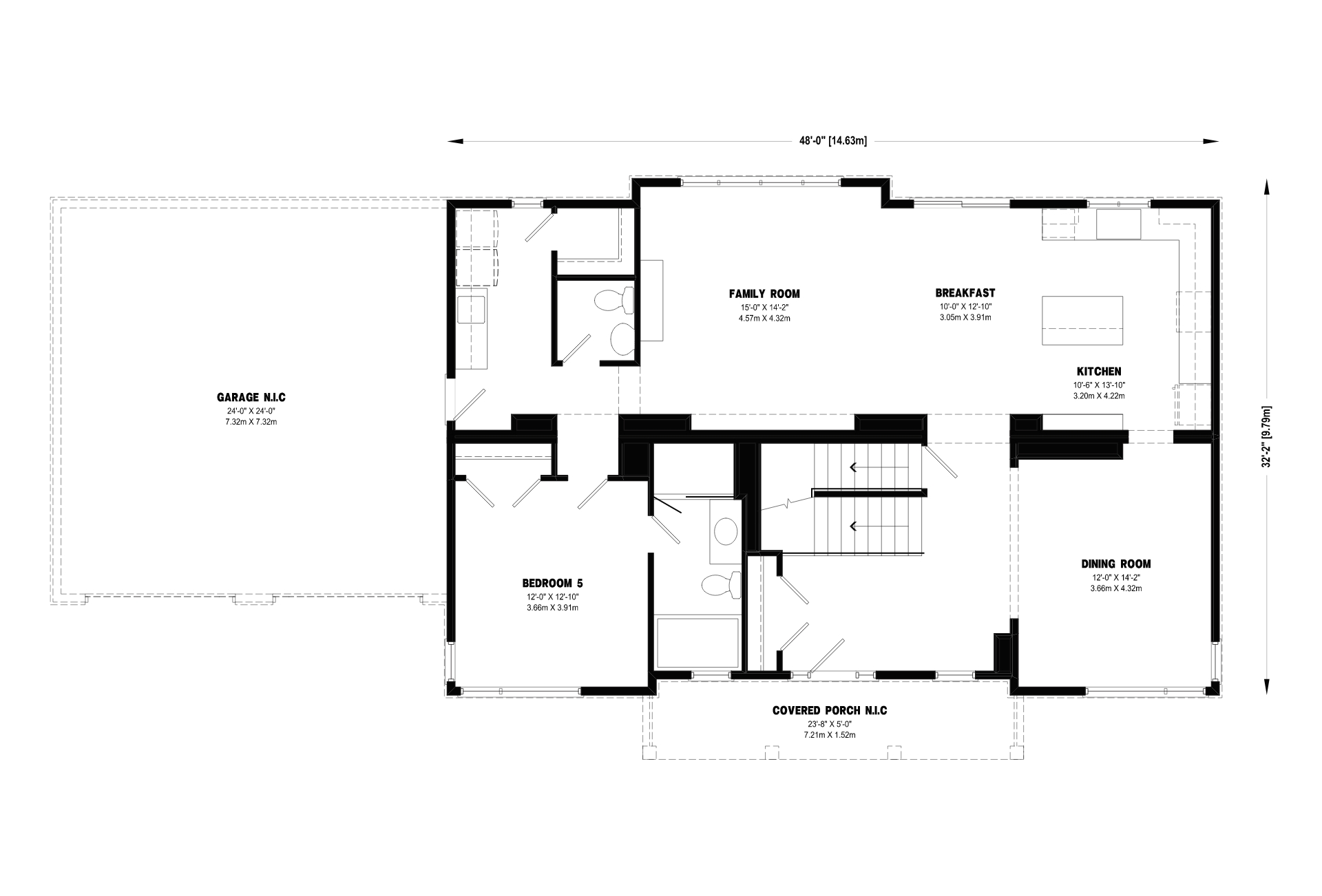
The Mapleridge 500 brings generous living to life with five bedrooms and a layout that suits large or multi-generational families. A bright, open main floor connects the kitchen, dining, and family spaces, while upstairs, a luxurious primary suite with seating area and dual walk-in closets creates a private haven.
We will get in touch with you shortly.