
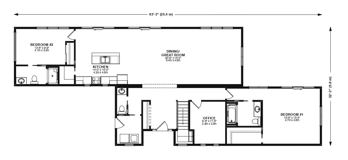
The Q-M1 blends open living with flexible functionality. A generous great room and dining area flow seamlessly into the kitchen, creating the perfect setting for everyday living or weekend entertaining. Large windows fill the space with natural light, while the private office offers a quiet retreat for work or hobbies. With two bedrooms, including a spacious primary suite, this layout provides comfort and versatility for any lifestyle.
We will get in touch with you shortly.