
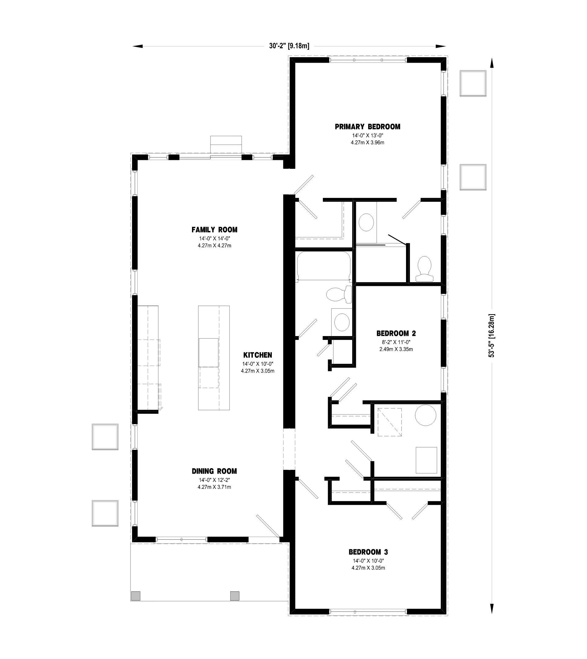
With three well-sized bedrooms and an inviting open layout, the Aurora offers room for both family and guests. A generous kitchen connects to a comfortable family and dining area, while the private primary suite ensures rest and relaxation.
We will get in touch with you shortly.