



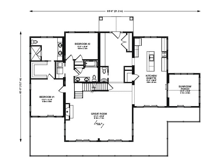
Wake up to breathtaking views from nearly every corner of your vacation home, where the great room opens to the outdoors with three walls of windows, filling the space with natural light and panoramic scenery. Relax by the fireplace or enjoy meals in the inviting kitchen and adjoining sunroom surrounded by nature. The primary suite, complete with a walk-through closet and private ensuite, offers a peaceful retreat to unwind. Thoughtfully designed for comfort and connection, this home beautifully blends modern living with the serenity of the outdoors.
We will get in touch with you shortly.