
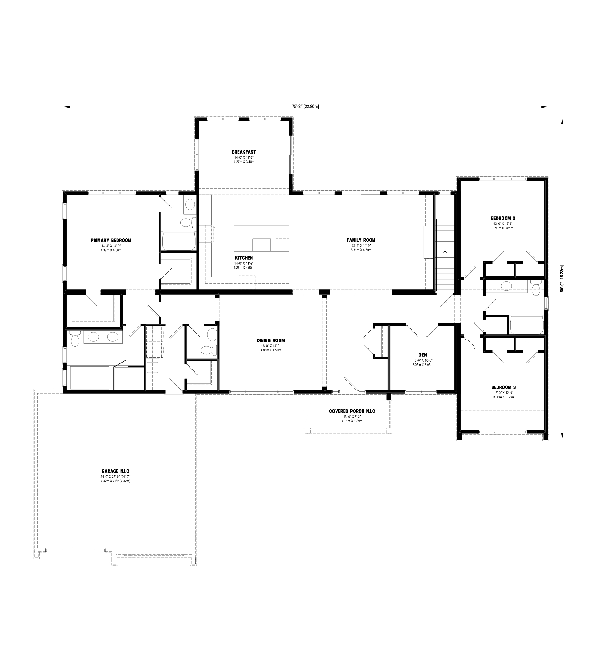
The Catalina 500 is a sophisticated bungalow that combines elegance with everyday ease. A large family room anchors the home, opening to a spacious kitchen and breakfast area ideal for entertaining. Three bedrooms plus a den offer versatility, while the primary suite with dual walk-in closets and spa-inspired ensuite provides the perfect retreat.
We will get in touch with you shortly.